Eggenfelden, 2008
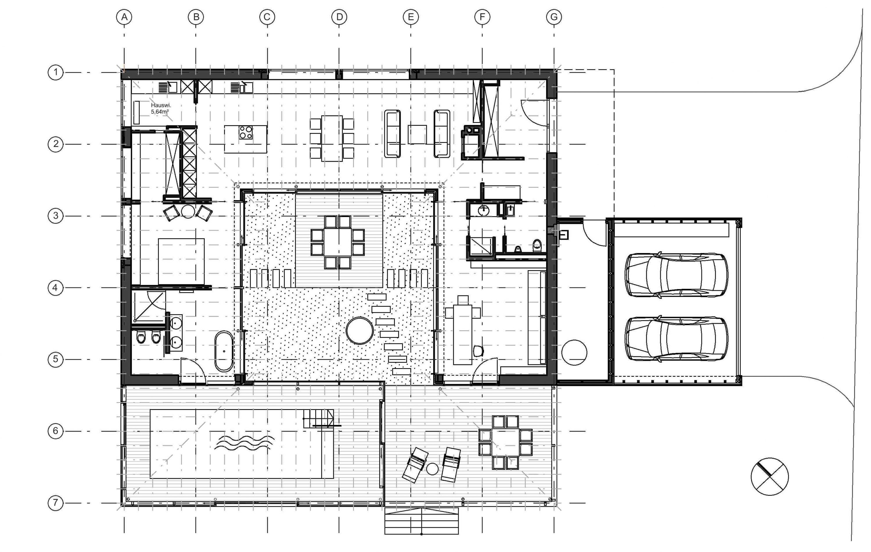
Das Haus dient als Austragshaus für ein Seniorenpaar, das für sich ein altengerechtes Wohnhaus errichten ließ. Die Räume gruppieren sich ebenerdig um einen quadratischen, begrünten Innenhof, was ein Wohnen im Garten und mit der Natur möglich macht. Ein kleines Hallenbad im verglasten Querriegel schützt den Wohnbereich vor dem Lärmpegel der nahen Bundesstraße.



































