Umbau und energetische Sanierung Zweifamilienhaus Sch., Künzing, 2016-17
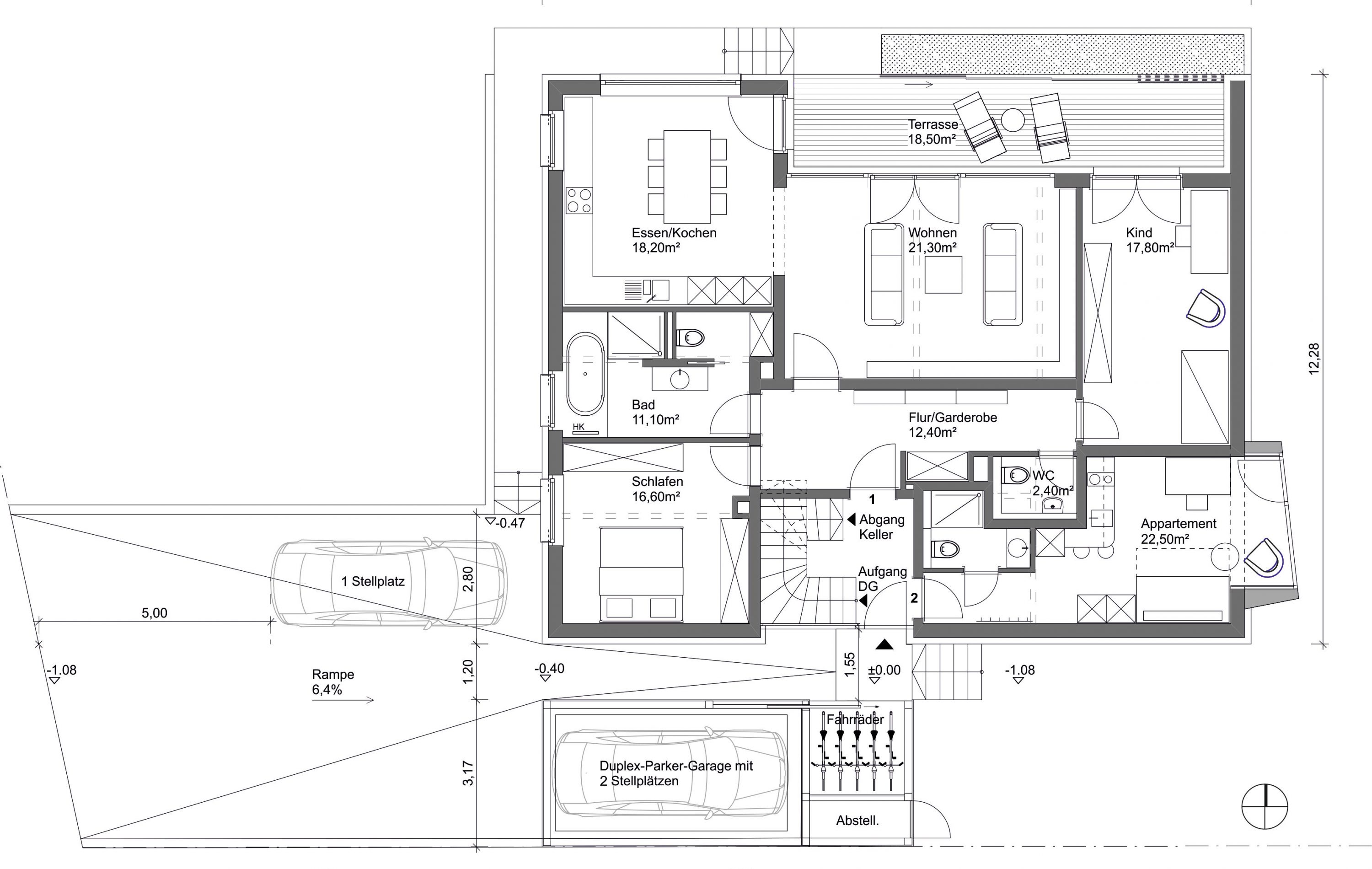
Das bestehende Zweifamilienhaus aus den 70er-Jahren soll im Erdgeschoss für die Nutzung einer Familie mit 2 Kindern umgebaut werden und eine neue, großzügigere Treppenanlage in die zu erhaltende Dachgeschosswohnung, die von der Mutter des Bauherrn genutzt wird, erhalten.
Die Dachgeschoßwohnung soll mit einem Treppenlift erschlossen werden.
Gewünscht ist ebenfalls, den Höhenunterschied zum Eingangsbereich durch eine behindertengerechte Geländerampe bis zur Straße hin auszugleichen. Die Bestandsgarage, die sehr weit hinten im Grundstück liegt wird durch eine nach vorne verschobene Garage ersetzt, damit wird der Zugang zwischen Wohnhaus und Garage betont. Der Grundriss im Erdgeschoss wird dahingehend verändert, dass der Wohnbereich mit Essen und Küche die bestehende Nordost-Ausrichtung zugunsten einer Ausrichtung zur geschützten Südterrasse aufgibt. Das Haus erhält bei der Lösung für Dach und Wand die gleiche Bekleidung mit Fassadentafeln.





